Dettagli.


  • BLC
    La struttura del brise soleil a copertura dell'entrata
  • La scala a chiocciola esterna.

BLC
La struttura del brise soleil a copertura dell'entrata.
La scala a chiocciola esterna.
  • CLE
    La struttura della seduta con l'illuminazione incorporata
  • Le sedie rotanti in lamiera pressopiegata

CLE
La struttura della seduta con l'illuminazione incorporata
Le sedie rotanti in lamiera pressopiegata
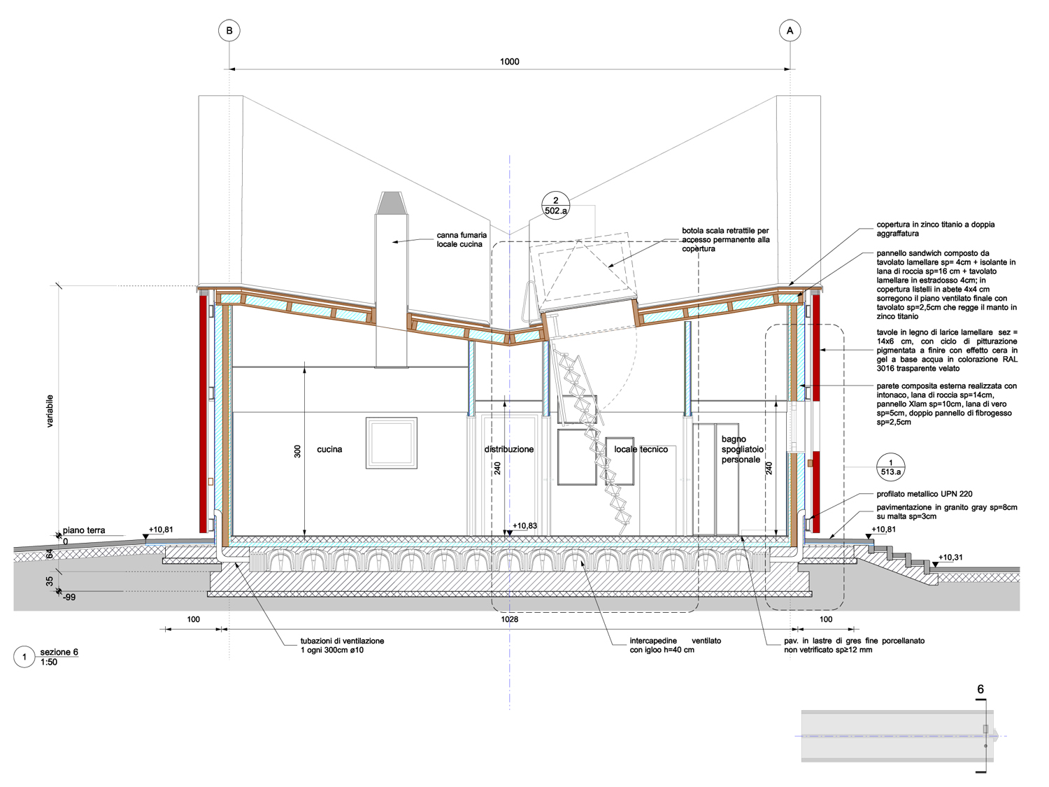
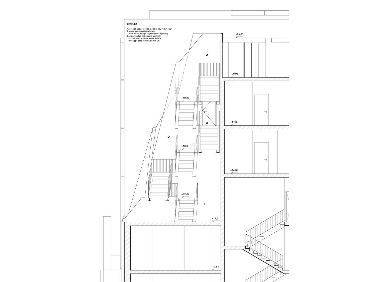
  • GCG
    Lascala di emergenza interna
  • La copertura della scala in standole di piombo

GCG
La scala di emergenza interna
La copertura della scala in scandole di piombo
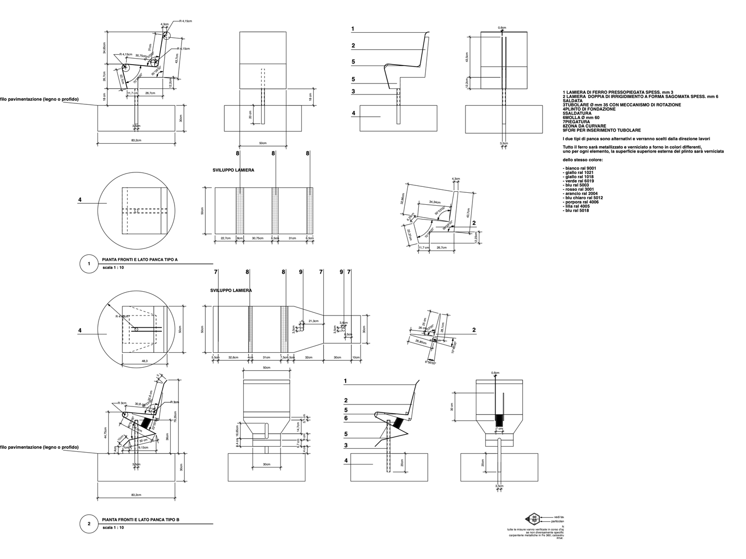
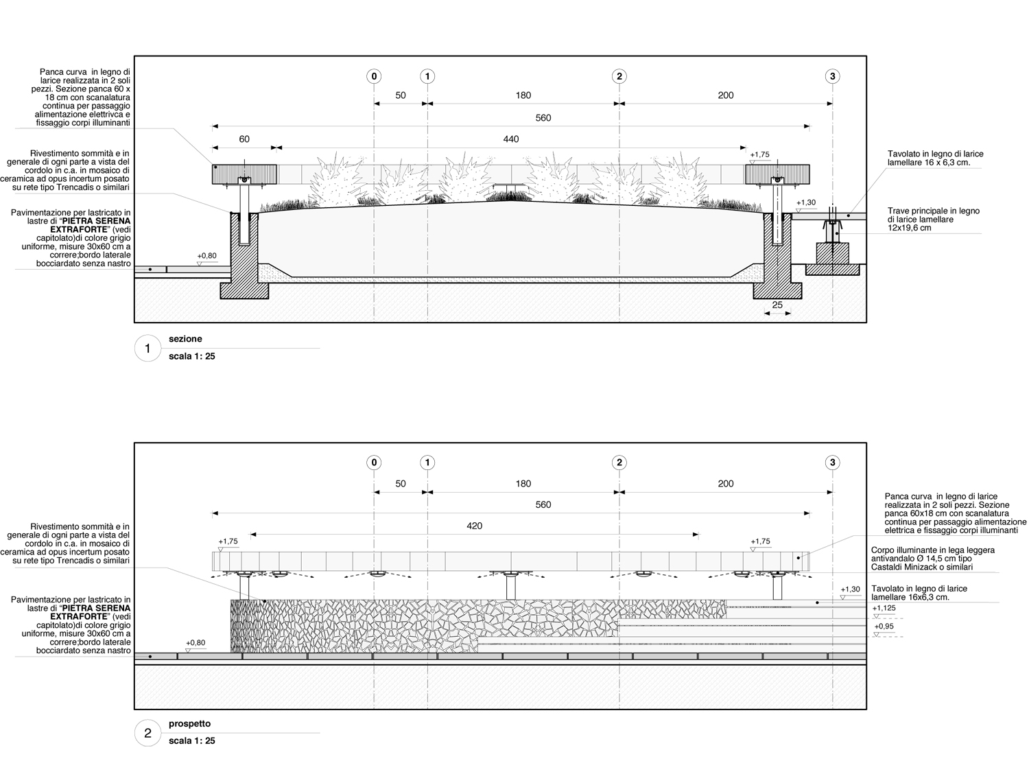
  • PAD
    Il disegno della panca e il posizionamento dell'illuminazione sottostante

PAD
Il disegno della panca e il posizionamento dell'illuminazione sottostante
  • PF4
    La geometria del portale ed il fissaggio delle formelle alla struttura
  • Il disegno delle pareti lignee a divisione dello spazio per i giochi

PF4
La geometria del portale ed il fissaggio delle formelle in grès colorato alla struttura
Il disegno delle pareti in cemento legno a divisione dello spazio per i giochi
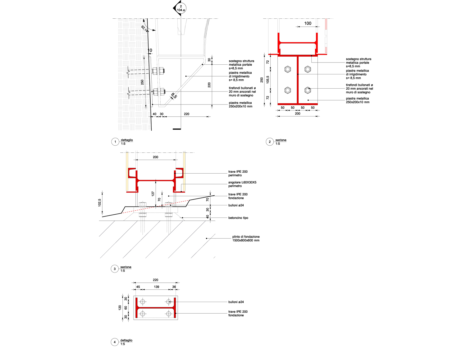
  • ROP
    La struttura in acciaio a sostegno della copertura dell'agorà

ROP
La struttura in acciaio a sostegno della copertura della loggia pubblica
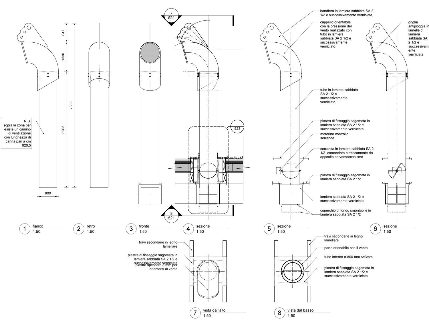
  • ROS
    I camini per areazione naturale della biblioteca collocati sulla copertura e il cappello girevole
  • La torre del vento

ROS
I camini per l'areazione naturale della biblioteca collocati sulla copertura e il cappello girevole
La torre del vento
  • SGC
    La struttura a delimitazione dell'area pensata come seduta e parapetto con illuminazione incorporata
  • I parapetti lungo il percorso

SGC
La struttura a delimitazione dell'area pensata come seduta e parapetto con illuminazione incorporata

Una2 Architetti associati
Vico delle Mele 6/3
16123 Genova

Partita IVA:
01664190996

Info:
info@una2.net

© 2021

Our website uses cookies, which could include also third party cookies.
By continuing to browse the site, you are agreeing to our use of cookies.
Read More