GCG

    Casa della Giovane, Genova
    • dati
      luogo
      Genova centro storico, via delle Fontane
      incarico
      progetto preliminare, definitivo,
      esecutivo, direzione lavori
      data
      2005-2012
      importo lavori/categoria
      1.208.000 cat. Ic
    • persone
      committente
      comune di Genova;
      RiGenova srl

      progettazione architettonica
      una2

      progettazione strutturale
      ing. A. Signorelli; ing. M. Borghini

      progettazione impiantistica
      Sedisform srl
    • foto
      Andrea Bosio Genova
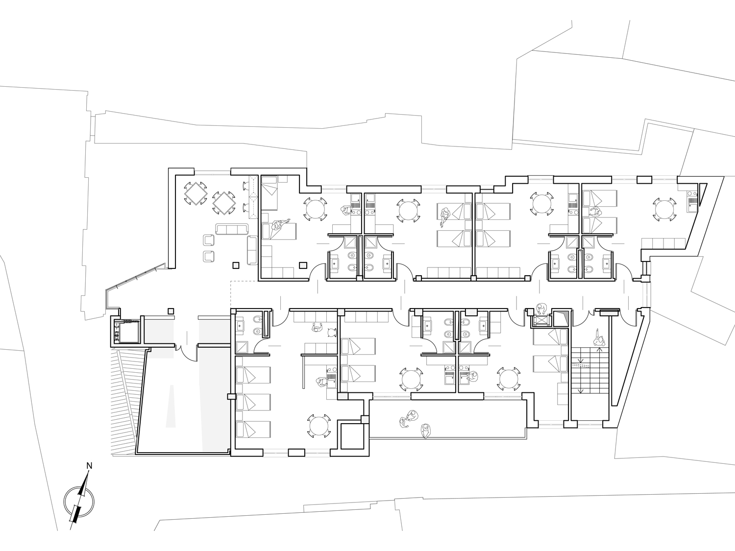
    Secondo le indicazioni del nuovo piano regolatore di Genova l’edificio che un tempo ospitava la sede della Casa della giovane doveva essere ridotto nella parte frontale per permettere di migliorare l’illuminazione naturale e la ventilazione della retrostante piazzetta.
    Quasi un intervento di diradamento su una porzione di
    centro storico molto importante che si effettua sulla porzione più facilmente sacrificabile: il tassello edificato alla fine
    degli anni cinquanta. La demolizione ha fornito l’occasione
    per ripensare il sistema distributivo della struttura che andava adeguata alle norme di sicurezza vigenti.
    Il progetto si concentra pertanto nel ridisegno del volume frontale su via delle Fontane che contiene le scale
    di emergenza, l’ascensore e la loro connessione con il sistema esistente arricchito dall’integrazione di tracce forti del passato come l’oratorio Orazione e Morte e il palazzo Belimbau. Infatti lo sperone verticale del nuovo ascensore
    si propone come elemento di dialogo tra la superficie
    geometricamente moderna dell’involucro della nuova scala, immaginato in lastre di piombo sovrapposte, metallico ma non riflettente, scivolo ma non specchio per la luce
    che deve dirigersi verso la piazzetta interna e il prospetto dell’oratorio vero perno di tutta l’operazione.
    Lo sperone reagisce al colore morbido, quasi vellutato,
    del piombo con la rudezza del cemento armato a vista, frastagliato dalle sbavature dei casseri realizzati con tavole sottili poste in verticale: una finitura senza l’ambizione di diventare astrattamente metallica. Il corpo dell’ascensore sorregge gli sbalzi delle propaggini terminali del corridoio centrale che si apre, verso la città e la luce, con una grande prua vetrata che si alza per cinque livelli.
    Le vetrata dello sbarco ascensore piega leggermente verso la facciata soprastante l’oratorio Orazione e Morte per
    raccordare le diverse giaciture dei piani che caratterizzano questo prospetto, ed introduce l’ultimo elemento di questa composizione che, quarto in una sequenza di materiali
    tutti differenti, sarà un piano interamente intonacato
    e completamente privo di bucature.
    I prospetti nord e sud rimangono pressoché invariati:
    nulla alle loro spalle è così cambiato da giustificarne
    il cambiamento. Ad ogni piano, accettato il ruolo inevitabile del corridoio, le diverse unità si affiancano nel rispetto delle dimensioni suggerite dai regolamenti, dagli usi e di quanto già esisteva.

    Una2 Architetti associati
    Vico delle Mele 6/3
    16123 Genova

    Partita IVA:
    01664190996

    Info:
    info@una2.net

    © 2021

    Our website uses cookies, which could include also third party cookies.
    By continuing to browse the site, you are agreeing to our use of cookies.
    Read More