BLC

    Nuova palazzina "Energia sostenibile" nel Campus Universitario di Savona
    • dati
      luogo
      Savona
      incarico
      progetto vincitore dell’appalto integrato per la progettazione esecutiva e la realizzazione.
      data
      2015-17
      importo lavori/categoria
      2.134.000 euro cat. I.d, I.g, IIa, III.b, III.c E.10
      dimensioni
      superficie coperta 507 mq
    • persone
      committente
      Cesag S.r.l
      Università degli Studi di Genova

      progettazione architettonica
      una2

      progettazione strutturale
      ing. Aldo Signorelli, Genova

      progettazione impiantistica e antincendio
      Studio Taccini, Genova

      coordinamento sicurezza
      Perito Industriale Flavio Mazzini

      giovane professionista
      arch.Maria Agnese Chiarella
    • foto
      Andrea Bosio Genova
    La palazzina Energia Sostenibile (SEB- sustainable energy building), è l'ultimo tassello della trasformazione della ex-caserma Bligny in campus universitario, che ha visto impegnati a più riprese i professionisti di UNA2 a partire dal 1997. L'edificio è il primo con funzioni didattico-formative costruito ex-novo nel campus e con obiettivi molto ambiziosi in materia di sostenibilità e performance energetiche.
    La peculiarità di questo edificio a emissioni zero, che lo connota come prima infrastruttura urbana di “Smart City” in Italia, è l’interazione in tempo reale tra il SEB e la Smart Polygeneration Microgrid (SPM), la rete intelligente che fornisce energia elettrica e termica al Campus.
    Questa connessione permette di definire il SEB un “Energy Prosumer” un edificio capace cioè, sia di produrre energia (termica e elettrica) per soddisfare le proprie esigenze, che richiamare energia dalla SPM in caso di necessità.
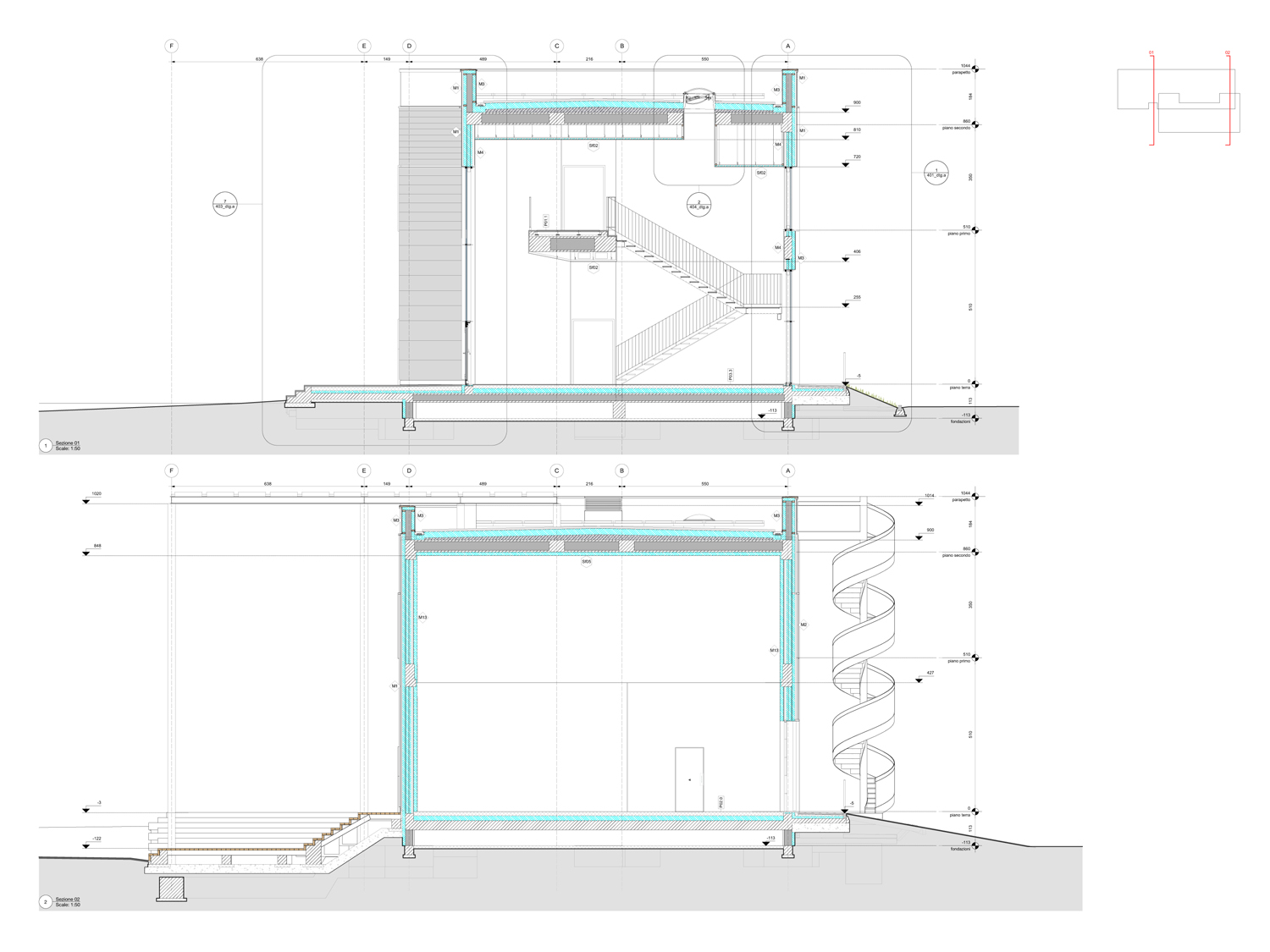
    I flussi di consumo e produzione di energia sono monitorati in tempo reale utilizzando appositi KPIs. L’edificio è costituito da due piani che coprono un’area complessiva di circa 1000 mq. È riscaldato e raffrescato completamente dall’energia geotermica del suolo e alimentato elettricamente da pannelli fotovoltaici e accumulatori elettrici. In particolare il SEB è caratterizzato dalla presenza di materiali innovativi per l’isolamento termico e acustico, pompa di calore geotermica, pannelli solari termici sul tetto, impianto di VMC, air handling unit, impianto fotovoltaico sul tetto, un impianto di illuminazione ad alta efficienza, un sistema di recupero acqua piovana, facciate ventilate ed una palestra tecnologica.
    I muri esterni, quelli interni e i soffitti sono composti da materiali con un’alta percentuale di componenti riciclati, che garantiscono un alto isolamento termico ed acustico. La tecnologia di facciata è un sistema costruttivo a secco tipo "Siniat", che articola, nelle diverse posizione, differenti tipologie di lastre e di strati isolanti per arrivare ad alte prestazioni termo-acustiche. (U=0,126 W/m²K, isolamento acustico Isolamento acustico= 65 dB, sfasamento= 10 h 11’ ).
    Sulla la copertura è previsto lo stesso sistema di brise soleil metallici adottato per le altre palazzine del Campus. Il brise soleil è costituito da colonne e travi in acciaio con profili di produzione corrente, mentre le lamelle sono in fibrocemento.

    Una2 Architetti associati
    Vico delle Mele 6/3
    16123 Genova

    Partita IVA:
    01664190996

    Info:
    info@una2.net

    © 2021

    Our website uses cookies, which could include also third party cookies.
    By continuing to browse the site, you are agreeing to our use of cookies.
    Read More