BBB

    Allestimento della nuova caffetteria nella Pinacoteca di Brera
    • dati
      luogo
      Milano
      incarico
      progetto di allestimento per documentazione di gara
      data
      2017
    • persone
      committente
      QB srl Varese

      progettazione architettonica
      una2
    • foto
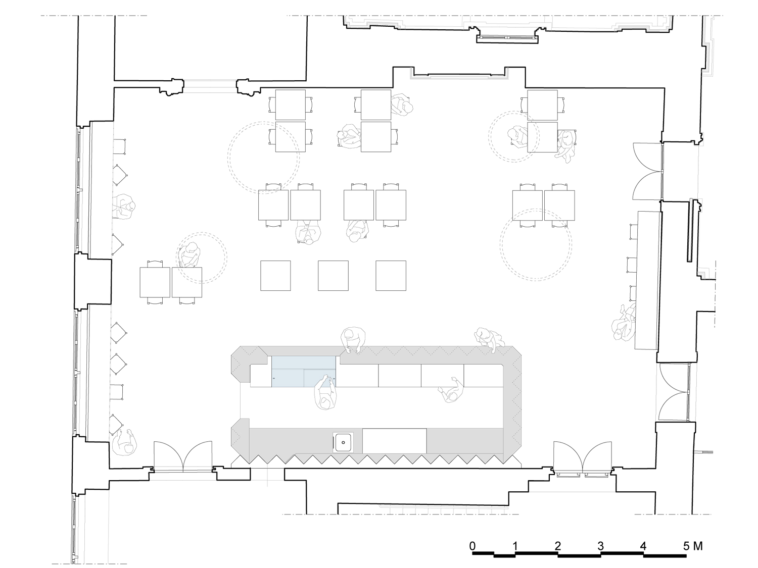
    Il progetto di allestimento della caffetteria e del merchandising è parte della documentazione di gara per il servizio complessivo di gestione dell'attività realizzato per una primaria azienda nazionale del settore.
    La Pinacoteca di Brera è stata oggetto in anni recenti di un progetto di riallestimento delle sale storiche caratterizzato dall’uso di fondi monocromi, diversi per ogni sala, che intendono richiamare la grande tradizione decorativa italiana e che connotano in modo preciso lo spazio delle sale e l’allestimento museografico. Da questi ampi sfondi colorati emergono e risaltano le cornici e le opere.
    Il progetto di allestimento della caffetteria sceglie di partire proprio da questa singolarità, dai “colori di Brera” ed in base a questi elabora il design della corporate identity e più in generale del nuovo caffè Fernanda.
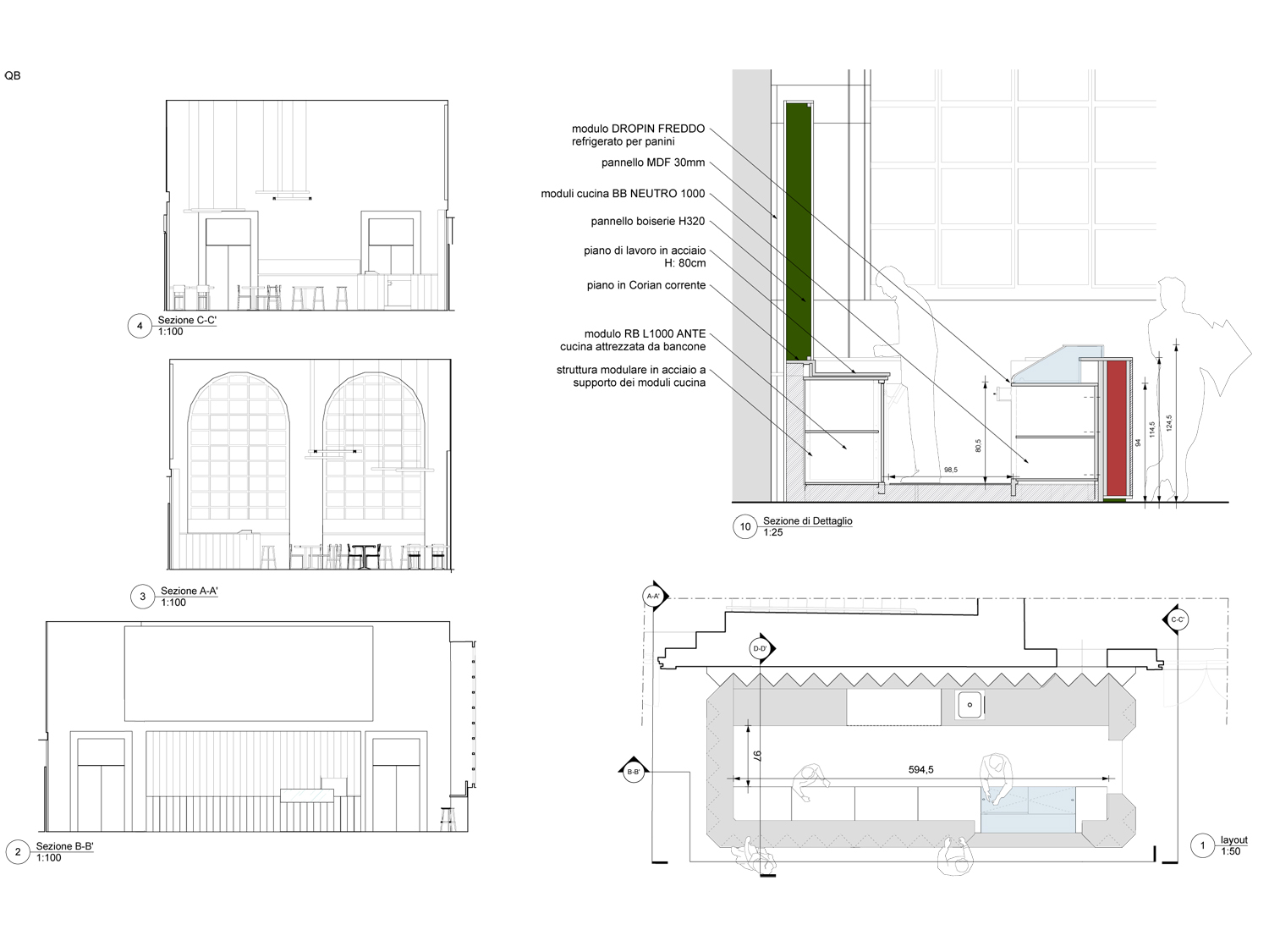
    Il gioco diventa chiaro con il design del merchandising, dove la palette dei colori è completa, in particolare per gli elementi in serie quali bicchieri, tazzine di carta, mugs, biglietti da visita e cioccolatini.L’allestimento del bancone del bar declina i cromatismi presenti nelle sale in maniera più semplice limitandosi alla scelta di due soli colori, ma al tempo stesso rafforza la presenza all’interno della sala con la realizzazione di una boiserie tridimensionale a rivestire il bancone ed il fondo tra le due porte esistenti; questa è realizzata con semplici pannelli accostati, inclinati e colorati in modo alternato, e nasconde e rivela al movimento del visitatore le alternanze del verde e del vinaccia scelti come colore del rivestimento.

    Una2 Architetti associati
    Vico delle Mele 6/3
    16123 Genova

    Partita IVA:
    01664190996

    Info:
    info@una2.net

    © 2021

    Our website uses cookies, which could include also third party cookies.
    By continuing to browse the site, you are agreeing to our use of cookies.
    Read More