MON

    Centro dell’Intrattenimento a Torino
    • dati
      luogo
      località Vadò, Moncalieri (TO)
      incarico
      permesso di costruire,
      progetto definitivo, esecutivo
      data
      progetto: 2000
      fine lavori: 2005
      importo lavori/categoria
      36.150.000 euro cat. Ic
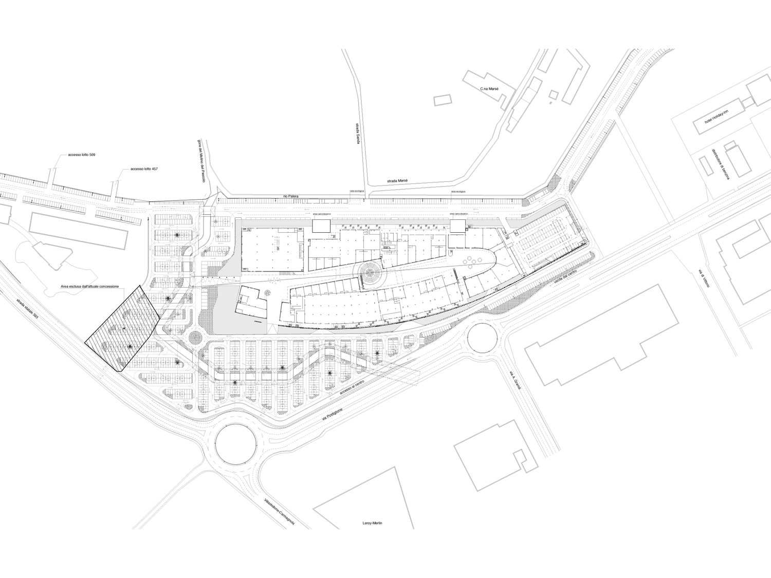
      dimensioni
      superficie lotto 97.280 mq
      superficie fondiaria 35.703 mq
      superfici coperte 40.620 mq
    • persone
      committente
      Pirelli & C. Real Estate

      progettazione architettonica
      una2 con
      A. Femia, G. Peluffo, S. Brandolini

      concept design
      RTKL UK Ltd, Londra

      progettazione strutturale
      Progest srl Torino

      progettazione impiantistica
      Manens intertecnica srl, Verona

      direzione lavori
      J&A consultants snc, Milano

      geologia
      dott. C. Ferrero lgl snc, Savona
    • foto
      una2
    L’intervento proposto si configura come uno dei tasselli di un complesso sistema che si sta realizzando sulla cintura torinese dove si prevede un forte incremento dei servizi e delle infrastrutture a disposizione dei cittadini per il tempo libero, l’intrattenimento, il fitness ed il commercio.
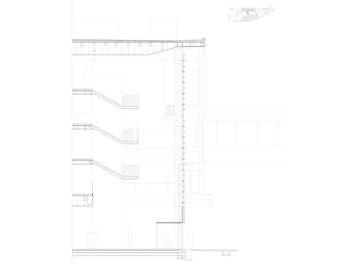
    Si tratta di un grande edificio polifunzionale, frammentato in diversi volumi. L’impianto planimetrico dell’edificio è caratterizzato da una grande promenade sulla quale si affacciano gli spazi commerciali, la palestra, lo spazio espositivo, il cinema multisala ed i ristoranti tematici posti all’estremo nella court food.
    La “tematizzazione” scelta per questo centro dell’intrattenimento è il viaggio e l’esplorazione geografica. Una linea di luce e decoro attraversa l’intero percorso come rappresentazione del 45° parallelo, (latitudine di Moncalieri). Il lungo prospetto su via Postiglione volge a proprio vantaggio le ingombranti scale di sicurezza del cinema multisala, per divenire un fronte di comunicazione visiva ed è inviluppato da una superficie continua, grigliata o microforata in metallo, predisposta a ricevere l’illuminazione di ambiente o un sistema di proiezione con animazioni che cambiano soggetto nel corso del tempo o in occasione di particolari eventi.

    Una2 Architetti associati
    Vico delle Mele 6/3
    16123 Genova

    Partita IVA:
    01664190996

    Info:
    info@una2.net

    © 2021

    Our website uses cookies, which could include also third party cookies.
    By continuing to browse the site, you are agreeing to our use of cookies.
    Read More