ARZ

    Edificio per uffici basato su principi di sostenibilità ambientale.
    • dati
      luogo
      Terranuova Bracciolini (AR)
      incarico
      concorso internazionale in due fasi. Progetto Finalista
      data
      2009-2010
      importo lavori/categoria
      2.300.000 euro cat. Ic
    • persone
      ente banditore
      Centro Servizi Ambiente Impianti spa

      progettazione architettonica
      una2 con
      area progetti (capogruppo); neutrostudio; arch. V. Esposito

      progettazione impiantistica
      2C Ingegneria srl

      consulenza sostenibilità ambientale
      Innovasystem srl
    • foto
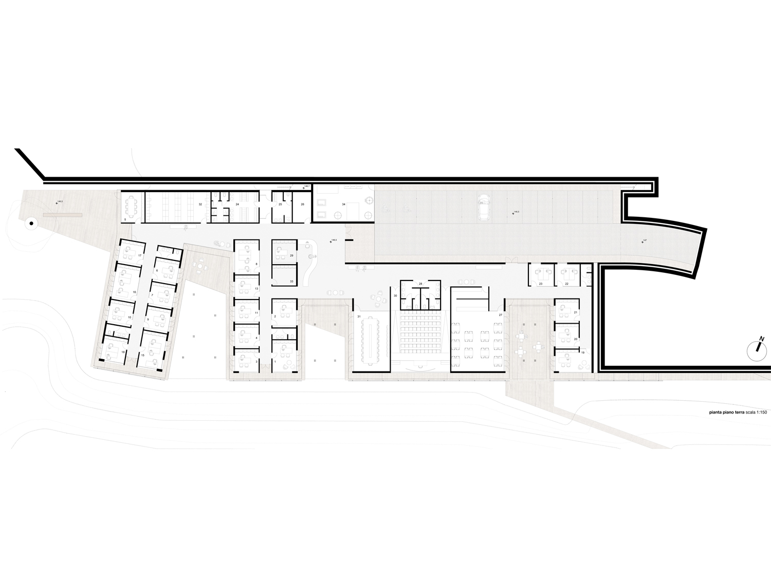
    Scelta strategica preliminare è quella dell’edificio monopiano, che utilizza l’intera area a disposizione. Questo realizza una prima importantissima economia sulla struttura dell’edificio e consente di eliminare la circolazione verticale. Altrettanto importante è il posizionamento sul suolo, parzialmente ipogeo per avere continuità prospettica tra il tetto verde ed il terreno circostante. Il nuovo edificio è costituito da 4 blocchi funzionali (corrispondenti alle macro aree delle due aziende e degli spazi comuni) orientati nord-sud e quindi ortogonalmente al declivio. I blocchi sono raccordati da un percorso orientato est-ovest a monte del quale si trovano gli spazi di servizio. Tra i diversi blocchi si aprono i giardini interni coperti, cuore del progetto insieme alle “lanterne” che li sovrastano. Queste sono figure ibride a metà tra la serra ed il brise soleil; sono costruite in bamboo per la doppia valenza tecnologica e simbolica di questo materiale. Le strutture verticali ed orizzontali sono pareti portanti sandwich di legno.
    Il progetto analizza le regole insediative del contesto territoriale circostante e le rielabora alla ricerca della massima integrazione con l’ambiente. Intende stabilire una dialettica con la natura che superi la contrapposizione artificiale/mimetico alla ricerca di un livello superiore di articolazione e complessità. E’ in parte dentro e in parte fuori terra, alcune sue parti sono organiche, ma altre chiaramente astratte. Da un lato è come originato dalla natura, dall’altro molto artificiale: vuole rendere compresenti i due diversi modi di rapportarsi al suolo della tradizione costruttiva e articolarli nelle diverse situazioni.
    La posizione sul suolo del nuovo edificio trova rimandi e allineamenti al capannone, ma al tempo stesso cerca da un lato il viale d’ingresso alberato e dall’altro va a legarsi alla viabilità e ai percorsi di accesso.
    In corrispondenza degli sprofondamenti del tetto verde si trovano i giardini interni su cui affacciano gli spazi di lavoro.
    La facciata sud ha un disegno sincopato che ambisce a smaterializzare anticipandolo prospetticamente il volume del capannone esistente ed è realizzata con elementi in bamboo leggermente staccati dal suolo, in modo che l’edificio figurativamente appoggia su una linea d’ombra.
    Sulle corti verdi affacciate verso il paesaggio sono sospese delle strutture leggere (sempre in bamboo), a metà tra il pergolato e la serra. Gli elementi lineari verticali ed orizzontali e la cornice delle pareti verticali di questi elementi creano disegni sul terreno assimilabili ad un tappeto d’ombre, con decorazioni più rade verso l’esterno e sempre più dense all’interno.

    Una2 Architetti associati
    Vico delle Mele 6/3
    16123 Genova

    Partita IVA:
    01664190996

    Info:
    info@una2.net

    © 2021

    Our website uses cookies, which could include also third party cookies.
    By continuing to browse the site, you are agreeing to our use of cookies.
    Read More