BOS

    Low Emission Building –nuovo edificio per uffici ecocompatibile
    • dati
      luogo
      Bossarino, Vado Ligure (SV)
      incarico
      concorso privato a inviti, progetto vincitore;
      progetto preliminare, definitivo, esecutivo, direzione lavori
      data
      2002-2005
      importo lavori/categoria
      2.650.000 euro cat. Ic
      dimensioni
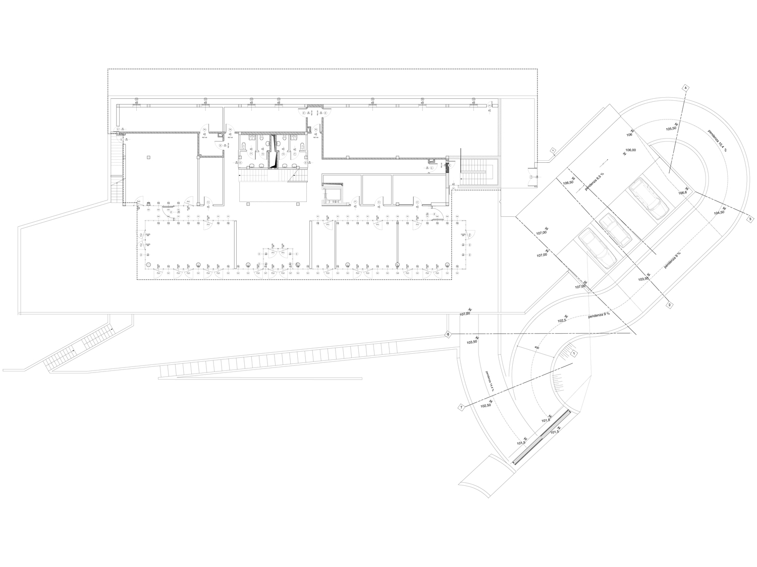
      superficie coperta 1900 mq
      volume fuori terra 4100 mc
      volume interrato 1700 mc
    • persone
      committente/impresa esecutrice
      Parfiri srl

      progettazione architettonica
      una2 con
      A. Femia, G. Peluffo

      progettazione strutturale
      ing. F. Feltri

      progettazione impiantistica
      studio Taccini, Genova

      indagini geologiche
      dott. C. Ferrero
    • foto
      una2
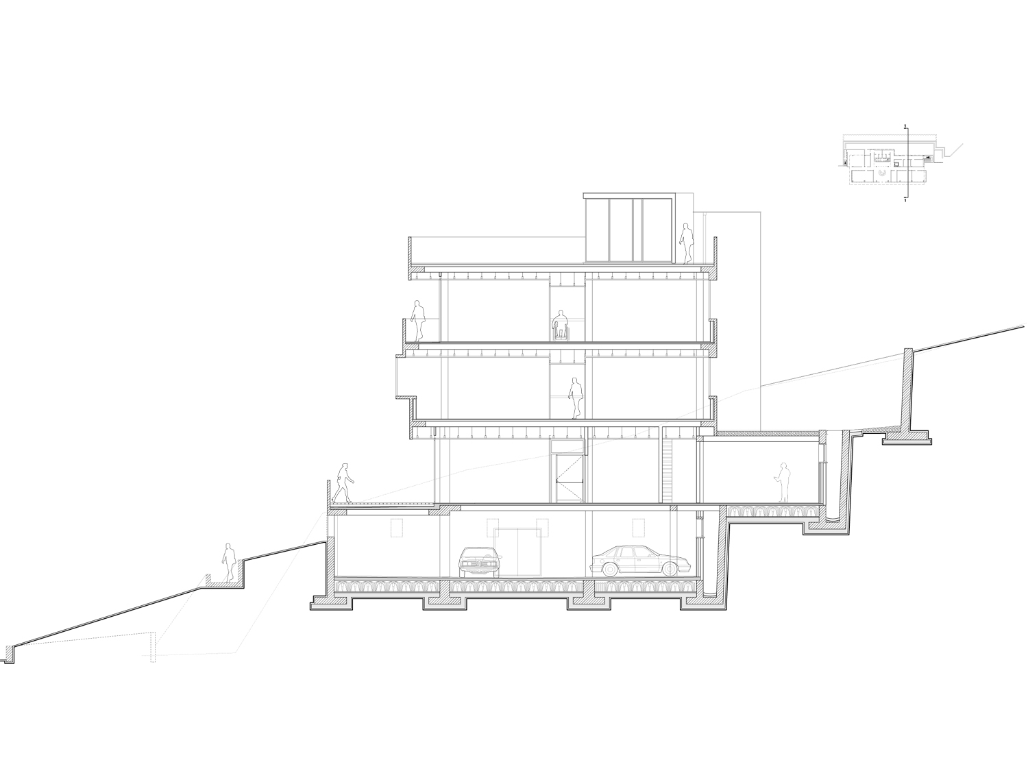
    Il tema era progettare un nuovo edificio per uffici di circa 2.000 mq oltre ad un piano interrato alla periferia industriale di Vado Ligure, in un contesto tipico per edifici di questo tipo: residui di natura, svincoli di superstrade, manufatti industriali nelle vicinanze, intenso traffico veicolare.
    Il progetto muove da una rilettura della finestra a nastro comunemente usata in questi interventi e vi introduce perturbazioni, scartamenti di geometria e di senso. Le finestre a nastro, a seconda della loro esposizione, divengono bovindi o incassi; gli sfalsamenti rivelano tracce di colore, realizzano terrazze, lasciano entrare la luce. Divengono insomma elementi per aumentare la qualità ambientale dell’edificio, raggiunta in altre parti mediante la scelta dei componenti e tecnologie passive.
    A questo proposito sono stati impiegati diversi accorgimenti per migliorare i consumi dell’edificio:
    - Il sistema di riscaldamento/raffrescamento è munito di una canalizzazione di ripresa che scambia energia con l’esterno mediante aria che attraversa il piano interrato dell’edificio che si trova a temperatura più alta dell’esterno in inverno e più bassa in estate.
    - Gli scarichi dei bagni sono alimentati con acque di recupero trattate mediante fitodepurazione in apposita vasca posta all’esterno dell’edificio di fronte all’autorimessa.
    - Il sistema di coibentazione delle superfici esterne dell’edificio è completamente privo di ponti termici ed è realizzato mediante un cappotto continuo di polistirene espanso privo di agenti inquinanti e chfc e serramenti con elevato valore di isolamento termico e vetri ad alto coefficiente di fattore solare.
    - La copertura, che funge anche da collettore per le acque piovane soggette al filtraggio della fitodepurazione, è realizzata mediante tetto verde rovescio che favorisce un ottimo isolamento termico, con sfasamento di circa 10÷12 ore (valido sia in inverno sia in estate) e valori di irraggiamento del calore incidente sulla copertura molto bassi (valido per diminuire l’apporto di calore verso l’ambiente circostante).
    Le luci colorate rosse, gialle e blu, diverse ad ogni piano, si accendono al tramonto o nelle mattinate invernali e, avvicinandosi all’edificio, si fanno scoprire i medesimi colori negli intradossi degli sbalzi.
    L'edificio è stato classificato come Biocompatibile ed Ecosostenibile dal CESISP, Centro interuniversitario di ricerca per lo sviluppo della sostenibilità dei prodotti dell'Università di Genova.

    Una2 Architetti associati
    Vico delle Mele 6/3
    16123 Genova

    Partita IVA:
    01664190996

    Info:
    info@una2.net

    © 2021

    Our website uses cookies, which could include also third party cookies.
    By continuing to browse the site, you are agreeing to our use of cookies.
    Read More