CCP

    Nuova copertura mobile per la piscina comunale
    • dati
      luogo
      Piscina comunale “G. Baldini”, Camogli (GE)
      Incarico
      studio di fattibilità tecnico-economica
      progetto definitivo
      data
      2020
      importo lavori
      1.500.000 €
    • persone
      committente
      Comune di Camogli (GE)

      progettazione architettonica
      una2

      progettazione strutturale
      ing. Giorgio Fassi, Genova

      progettazione impiantistica
      Consult Engineering, Genova
      ing. P. Zampredi
    • foto
      una2
    L’impianto costituisce un polo di comprovato valore per la collettività; tale qualità, è tuttavia oggi compromessa da problematiche dovute all’usura, e dalla subentrata necessità di garantire standard minimi funzionali derivanti dalle mutate esigenze dell’utenza.
    Le gestioni susseguitesi negli anni hanno effettuato interventi di manutenzione piuttosto sporadici, dettati più dalle esigenze contingenti o dalle emergenze, che da un piano manutentivo programmato.
    Ciò ha portato ad avere un impianto ancora funzionante, ma che presenta diverse criticità, nonostante gli interventi effettuati dall’Amministrazione Comunale e quelli relativi alla manutenzione ordinaria, svolti dalla Rari Nantes Camogli, che attualmente gestisce l’impianto.
    Descrizione degli interventi:
    L’intervento di sviluppa a seguito di una analisi condotta con il progetto di fattibilità tecnica e finanziaria approvato dalla Giunta Comunale, e in particolare prevede:
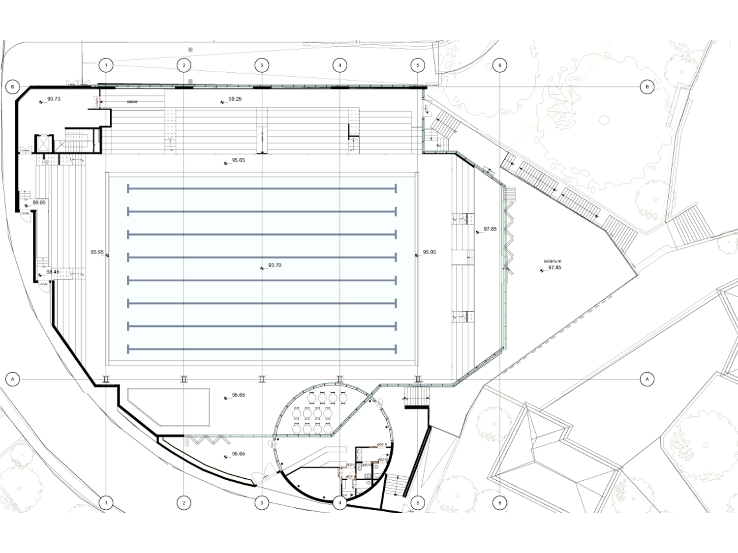
    - Il rifacimento della copertura, che diventa apribile, mantenendo l’impianto strutturale puntuale di scarico e le colonne esistenti, senza aumento di volume
    - La modifica dell’involucro esterno con materiali a più alte prestazioni energetiche, senza modificare la volumetria.
    - La ridefinizione architettonica del locale ristoro, che diventa elemento di compenetrazione con la vasca e quindi una sorta di vetrina sull’attività natatoria che si svolge all’interno.
    - La riqualificazione del solarium.
    - La manutenzione straordinaria, con sostituzione di parti desuete dell’impianto di trattamento aria, in funzione della nuova copertura

    Come detto la copertura è stata progettata per arrivare ad avere l’apertura del sistema senza stravolgere l’impianto strutturale della piscina. Si tratta pertanto di una copertura fissa con tetto mobile telescopico, con strutture realizzate in alluminio estruso, carrelli laterali, rinforzi e collegamenti strutturali in alluminio e/o acciaio inox o zincato a caldo opportunamente isolato, adatta alla movimentazione con azionamento elettromeccanico servo controllato, eseguito da operatore in modalità “uomo presente”. Tamponamenti in copertura e laterali realizzati in policarbonati o pannelli sandwich in lamiera di alluminio e poliuretano espanso. La copertura preesistente con struttura ad arco e rivestimento a cupolette, con l’importante massa bianca che la connotava, impattava in maniera piuttosto significativa sul paesaggio, rendendo molto presente la presenza nel contesto di un manufatto che è inevitabilmente fuori scala rispetto al tessuto edilizio circostante.
    Partendo da questa considerazione la nuova soluzione progettuale, ha optato per una copertura poco inclinata, che abbassa complessivamente l’altezza dell’edificio e, soprattutto nelle visuali a livello panoramico, ne contiene considerevolmente l’impatto.
    Dal punto di vista cromatico l’analisi che è stata condotta ha utilizzato uno studio dei colori delle facciate del centro del borgo marinaro. Si è eseguita una campionatura dei colori degli intonaci e gli stessi sono stati riportati nell’involucro dell’impianto giocando con le rigature e le relative sfumature e contrasti. La copertura diviene così un susseguirsi di colori che si ripetono inoltre sul prospetto.

    Una2 Architetti associati
    Vico delle Mele 6/3
    16123 Genova

    Partita IVA:
    01664190996

    Info:
    info@una2.net

    © 2021

    Our website uses cookies, which could include also third party cookies.
    By continuing to browse the site, you are agreeing to our use of cookies.
    Read More