PR8

    Complesso residenziale e terziario
    • dati
      luogo
      Piazza Mazzini, Viareggio (LU)
      Incarico
      progetto esecutivo e direzione lavori
      data
      2012-2013
      Importo lavori/categoria
      10.500.000 € cat.Ic
    • persone
      committente
      Via Regia s.r.l.

      coordinamento generale
      reA2 srl, Genova
      ing. Marco Malaspina

      progettazione architettonica
      una2 con
      arch. P. Mastino, Firenze
      arch. S. Bonaccorsi, Firenze

      progettazione strutturale e geotecnica
      studio Martignone associati, Genova

      progettazione opere provvisionali dello scavo
      ing. Gabriele Cinquini, Lucca

      progettazione impiantistica
      ing. Sandro Morandi associati, Genova

      consulenza geologica
      dott. geol. Rinaldo Musetti, Viareggio
    • foto
      una2
    Nel centro storico di Viareggio e davanti al mare, la piazza è il punto di partenza del Carnevale.
    Obbiettivo della committenza è quello di sviluppare e realizzare un’iniziativa immobiliare sul compendio immobiliare attraverso un intervento di recupero, la cui attuazione avviene mediante strumento urbanistico attuativo (Piano di recupero PR8), con la realizzazione di funzioni residenziali, terziarie e autorimessa privata e parzialmente pubblica.
    L’incarico si limita alla progettazione esecutiva e direzione lavori di un progetto che aveva già compiuto il proprio iter. In accordo con la proprietà e con gli enti preposti alle autorizzazioni sono state apportate alcune modifiche al partito architettonico dei prospetti.
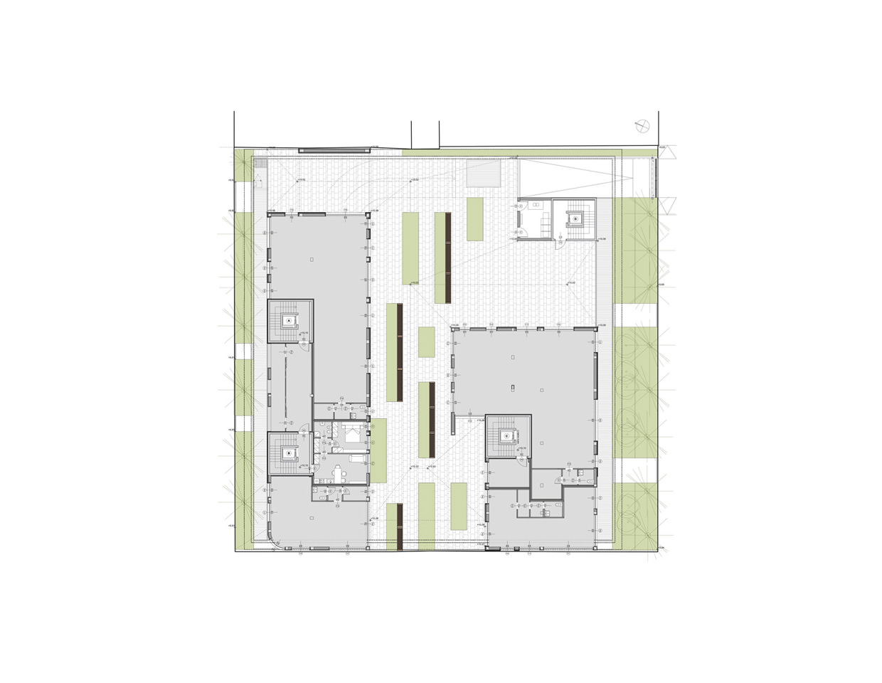
    Il programma prevede la realizzazione di due edifici ortogonali al mare, uno prospiciente Piazza Mazzini ed il secondo lungo Via Carducci della quale costituisce tratto terminale e completamento della cortina urbana. La destinazione è prevalentemente residenziale, mentre il piano terra prevede la realizzazione di negozi ed uffici destinati all’utilizzo da parte dell’amministrazione comunale. Una ulteriore quota di uffici si trova anche ai piani superiori. L’autorimessa interrata su due livelli soddisfa il fabbisogno del nuovo intervento e delle funzioni pubbliche previste. Entrambi gli edifici sono di 5 piani, quello verso piazza è gradonato sul fronte verso mare; lo spazio tra i due è integrato con le percorrenze pedonali tra via Carducci, Piazza Mazzini e il mare.

    Una2 Architetti associati
    Vico delle Mele 6/3
    16123 Genova

    Partita IVA:
    01664190996

    Info:
    info@una2.net

    © 2021

    Our website uses cookies, which could include also third party cookies.
    By continuing to browse the site, you are agreeing to our use of cookies.
    Read More