AYA

    Riconversione palazzetto del ghiaccio in centro benessere e ricreativo
    • dati
      luogo
      Ayas (AO)
      incarico
      concorso di progettazione in due gradi; progetto finalista
      data
      2009-2010
      importo lavori/categoria
      3.700.000 euro cat. Ic
    • persone
      ente banditore
      Comune di Ayas (AO)

      progettazione architettonica
      una2 con
      Area progetti; arch. L. N. Stellio, arch. A. Berdini; arch. E. Perri

      progettazione impiantistica
      2C Ingegneria srl

      Programmazione e Costi
      Ad-Hoc Culture srl
    • foto
      una2
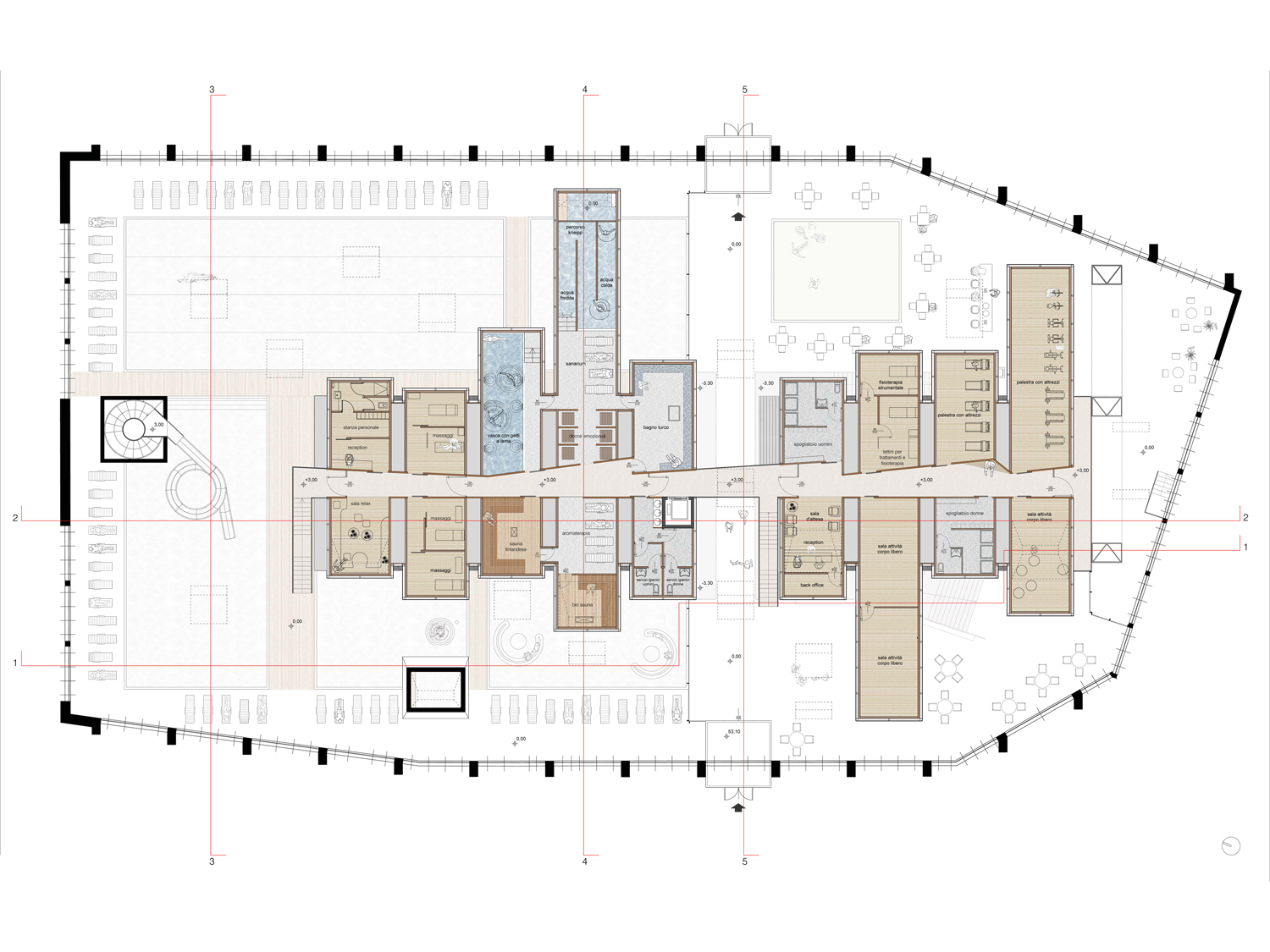
    Il bando proponeva di rifunzionalizzare il palazzetto del ghiaccio, attualmente sottoutilizzato.
    Si tratta di una struttura che sebbene realizzata in legno lamellare è caratterizzata da una certa pesantezza a causa delle luci da superare e conseguentemente degli psessori delle strutture.
    Si è scelto di creare un centro fitness wellness con ampie piscine, di inserire un auditorium ed inoltre conservare la palestra di roccia al coperto esistente, come richiesto.
    Va evidenziato come l’aver affrontato subito la questione energetica abbia generato degli stimoli a ripensare l’architettura non in termini di ridisegno generale, ma di recupero funzionale e tecnologico, con il risultato di un intervento sostenibile economicamente, che non elimina quanto da poco costruito, e che valorizza, invece, le funzioni di nuovo insediamento.
    Gli interventi edilizi sull’involucro, peraltro limitatissimi, vertono al miglioramento dell’efficienza energetica; un controsoffitto continuo diminuisce considerevolmente il volume da scaldare ed al tempo stesso riduce l’impatto visivo delle travi esistenti.
    Al tempo stesso isola il volume freddo del tetto da quello caldo degli ambienti sottostanti; generosi lucernari aperti sul manto di copertura fanno penetrare la luce naturale fin nel profondo dell’edificio, riducendo l’uso di illuminazione ausiliaria artificiale e di conseguenza il consumo energetico complessivo dell’edificio.
    La scelta maggiormente strategica risiede nell’uso continuativo della struttura ricettivo/turistica, che grazie alla costruzione dei nuovi volumi interni consente di allargare l’offerta di attività proposte. La struttura viene utilizzata per tutto il corso dell’anno e per un elevato numero di ore del giorno, riducendo se non annullando gli sprechi derivanti da usi saltuari o addirittura dall’inutilizzo. L’insediamento di piscine, beauty farm e settore rieducazione funzionale costituisce infatti un’opportunità di sicura valenza turistica e di valorizzazione di un immobile fino ad ora scarsamente utilizzato.

    Una2 Architetti associati
    Vico delle Mele 6/3
    16123 Genova

    Partita IVA:
    01664190996

    Info:
    info@una2.net

    © 2021

    Our website uses cookies, which could include also third party cookies.
    By continuing to browse the site, you are agreeing to our use of cookies.
    Read More